--   |  设为首页

帮忙装修网

中山

[切换]

134平米的北欧风复式楼装修,全屋原木【中山装修案例】

来自:中山帮忙装修网 日期:2020-09-28 14:40:43 11573 次 分享到:
导读:
中山帮忙装修网公司分享的这套134平米的北欧风的复式楼,以自然淳朴的原木为基调,通过简单大方的空间搭配,采用了原木、软木、树桩等大量自然生态的元素,搭配出一个简约舒适的空间。

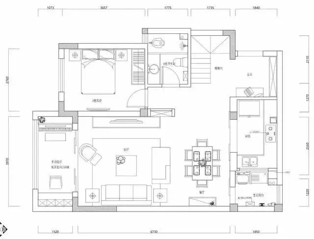
一楼平面布置图

二楼平面布置图

玄关

玄关地面贴着以花砖、搭配暖灰色的墙面墙面,以及墙面上几只可爱的栖鸟,摆上一张带抽屉的换鞋凳,摆上书籍与插画,简单自然又温馨舒适;

客厅

简单整洁的电视墙,以壁挂电视机,原木电视柜左侧一个一个梯状的收纳架,在电视墙右侧则做了个壁洞,摆上小树筒,结合前方摆一盆绿植,更是充满自然舒适的气息;

圆形小木茶几,搭配2张可爱的兔耳朵小椅子,在茶几上摆一瓶清新雅致的装饰,显得格外的自然舒适;

舒服的L型布艺沙发,在这个闲适的空间内给人以轻松的氛围感;

沙发墙与餐厅背景墙连贯一体,以同样的蓝色乳胶漆刷新,搭配上射灯的衬托,给人以简单大方的视觉感;

餐厅

木质简约的餐边柜,上方摆2张清新的装饰画跟绿植,结合旁边地面摆一盆大仙人掌,显得充满活力;

原木简洁的小餐桌椅,在这个简洁自然的空间里也是满满的舒适惬意;

厨房与小生活阳台都以谷仓门打造,粗犷而又大方;

一楼客房

一楼的小客厅,以简约自然的氛围,整个空间都充满清新闲适的气息;

深木色木衣柜,搭配蓝色背景墙,整个空间都是简单自然的氛围;

楼梯+过道

木地板跟木楼梯同样的质感颜色的材质,楼梯间下方还装成了小储物间,小而实用;

楼梯上方的电线吊灯,让这个抬高的楼梯空间不显得空档;

楼道的木门框做到顶,整体视觉感很是大方自然;

二楼主卧+书房

主卧进门后是个大衣柜,原木质感的电视柜、斗柜,整个空间搭配的效果相当的年轻自然;

床头背景墙简单的木色壁纸,挂上一幅装饰画,搭配床头两侧的吊灯,呈现出一个惬意情调的空间氛围;

主卧的阳台打通并到卧室里,并改造成一个小书房;

极简的小书桌,舒适而又实用;

书桌后方的这个墙面则是装着搁架书架,中间摆一张懒人沙发,偶尔躺着这里看看书,也是惬意至极;

二楼大儿童房

儿童房床头背景墙是软木板质感的材质,搭配同同样质感的地毯,灰色的床单与实木床,还在靠墙位置装了个小床幔,童趣浪漫又精致;

墙角位置借助柱子,做了个收纳,侧边摆一张小柜子,搭配绿植更是显得清新舒适;

床头的铁网架做成的装饰画,一旁床头放张书桌,整个空间都充满舒适的氛围;

二楼小儿童房

小儿童房的床头背景墙挂了2张装饰画,分别是狮子、熊猫图案的,粉色、米白与灰色的枕头抱枕,显得活泼可爱又精致;

卫生间

装修预算不够?快来申请装修贷款!月息低至2.5厘。帮忙装修网为解决业主的装修资金难题,特与银行合作推出“装修贷”,一站轻松办理:18824725983 吴先生

 长按二维码关注"帮忙装修网",了解更多装修资讯↓↓↓
 

或拨打免费热线:13822775923

已成功招标53523